








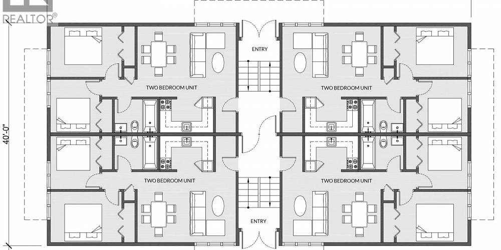
Positioned in one of Northern BC’s strongest, most resilient rental markets—fuelled by LNG Canada & Rio Tinto—turnkey, income-producing 30-unit apartment building presents an exceptional opportunity to acquire a high-performing multifamily asset with immediate and long-term upside. Property features 30 large two-bed suites with rents starting at $2,200/month, generating $42,656 in monthly gross income at ~83% occupancy, delivering an attractive 8.76% cap rate. With five vacant suites ready for lease-up, investors can unlock an additional ~$11,000 in monthly gross income almost immediately, significantly boosting cash flow and value. Motivated seller is offering a rare low-equity entry structure, including a Vendor Take-Back bridge to support CMHC financing, an ideal acquisition for investors seeking strong leverage, scalable returns. Beyond the in-place income, the site offers significant future upside through a potential 18-unit expansion. Call us today to set up a showing!
If you’re looking to buy real estate in Kitimat or you want to list your home for sale let’s meet to discuss your real estate goals….contact RE/MAX Coast Mountains – Kitimat Branch today!