


































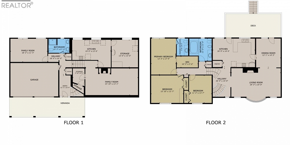
This well kept four-level split offers the kind of space, privacy, and care you don't often find. Backing directly onto forest, the yard is a gardener's dream with a greenhouse packed with veggies and a productive garden. The upper level features three generous bedrooms, including a primary with its own two-piece ensuite. The main floor gives you a comfortable flow with a formal living and dining area, plus an eat-in kitchen that opens onto a large sundeck.. Hardwood floors, a wood-burning fireplace, and detailed crown moulding add warmth and character throughout. Downstairs you'll find a guest room, bathroom, a kitchenette setup, and plenty of storage. A double garage and long term pride of ownership round out this special home located close to schools, parks, and great neighbours!
If you’re looking to buy real estate in Kitimat or you want to list your home for sale let’s meet to discuss your real estate goals….contact RE/MAX Coast Mountains – Kitimat Branch today!